Золоуловитель ЗУ 1.6 в Талдыкоргане

Золоуловитель ЗУ 1.6
Золоуловитель ЗУ 1.6
Чертеж золоуловителя ЗУ 1.6
Золоуловитель ЗУ 1.6 чертеж
Котел с золоуловителем ЗУ-1.6
Котел КВр с золоуловителем ЗУ 1.6
Изготовление золоуловителя ЗУ 1.6
Изготовление золоуловителей ЗУ 1.6
Устройство золоуловителя ЭП 1.6
Устройство золоуловителя ЭП 1.6
Производство золоуловителей ЗУ 1.6
Производство золоуловителей ЗУ 1.6
Золоуловитель ЗУ 1.6
Чертеж золоуловителя ЗУ 1.6
Котел с золоуловителем ЗУ-1.6
Изготовление золоуловителя ЗУ 1.6
Устройство золоуловителя ЭП 1.6
Производство золоуловителей ЗУ 1.6
Цена
461 300 ₸
От 461 300 ₸ с доставкой до г.
Логотип WhatsApp Связаться
по WhatsApp
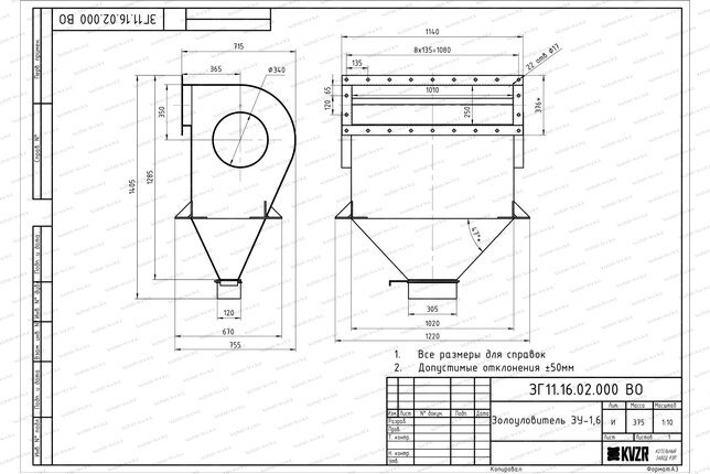
Золоуловитель ЗУ 1,6 представляет собой горизонтальный циклон, предназначенный для сухой инерционной очистки газов твердотопливных котлов от летучей золы Применяется с котлами малой мощности до 1600 КВт.

Технические характеристики

МаркаЗУ 1.6
Тип циклонаЗолоуловитель
ВидЗУ
Камера очищенных газовСборник
КПД80 %
Производительность6790-9840 м³/ч
Аэродинамическое сопротивление800 (80) Па (мм. вод. ст.)
Допустимая температура газов на входе до400 °С
Максимальный расход газа2.36 м³/с
Сечение входного отверстия250*1010 мм
Диаметр выходного отверстия340 мм
Объем бункера накопителя0.05 м³
Габаритные размеры: длина*ширина*высота715х1140х1285 мм
Масса380 кг
ПрименяемостьКотлы мощностью 1.6 МВт
БрендKVZR

Промышленный золоуловитель ЗУ 1.6 в Талдыкоргане

Золоуловители ЗУ 1.6 Талдыкорган устанавливаются в котельной сразу за котлом, перед дымососом. Пылеуловители могут эксплуатироваться вне помещения котельной под навесом при температуре окружающего воздуха от -60 °С до +40 °С. При такой эксплуатации циклон золоуловитель утепляют теплоизоляционными материалами.

Золоуловитель ЗУ 1,6 представляет собой горизонтальный циклон, предназначенный для сухой инерционной очистки газов от летучей золы (более 50 мкм) с максимальной температурой 260 °С.

По расположению оси очищаемого потока газа золоуловители 1.6 относят к типу горизонтального циклона. Дымовой газ поступает из выходного отверстия котла во входное отверстие золоуловителя ЗУ 1,6 и движется между криволинейными стенками корпуса. Под действием гравитационных сил из потока очищаемого газа выделяются твердые частицы золы и сажи, которые накапливаются в бункере сборнике расположенного внизу золоуловителя. Зола удаляется снизу через шибер. Очищенные дымовые газы отводятся из пылеуловителя по патрубку через круглое выходное отверстие на боковой стенке, далее поступают в газоходы котельной и через дымовую трубу удаляются наружу котельной.

В комплект поставки золоуловителя ЗУ 1.6 входят:

  • бункер-накопитель
  • корпус золоуловителя.

Золоуловитель ЗУ 1,6 применяется для улавливания золовых отложений после водогрейных котлов КВр и КВм мощностью до 1.86 МВт.

Купить золоуловитель ЗУ 1.6

Для того чтобы купить золоуловитель ЗУ 1.6 в Талдыкоргане, вы можете оформить заявку в отделе сбыта по телефону +7-7172-69-59-73, либо оформить заявку онлайн. Наши менеджеры дадут консультацию по подбору вспомогательного оборудования для выбранных вами моделей и рассчитают стоимость доставки до вашего региона.

Сертификаты товара

Сертификат на золоуловители (циклоны)
Сертификат на золоуловители (циклоны)

Опросные листы

Все опросные листы
Опросный лист на циклоны
Заполнить опрос
Опросный лист на опоры циклона
Заполнить опрос

Собственное производство

Котельный завод производит
  • Паровые котлы от 300 кг до 2.5 тонны пара в час
  • Промышленные водогрейные котлы от 150 КВт до 4 МВт на всех видах топлива
  • Механические топки ТШПМ, шурующая планка и ТЛПХ, ленточное полотно прямого хода
  • Циклоны для очистки воздуха и дымовых газов для производств и промышленных отраслей
  • Транспортеры и системы топливоподачи и шлакоудаления
Подробнее о производстве
Собственное производство
Смотреть видео
с производства